Металлокассеты открытого типа – покрытие, которое часто используется для создания вентилируемых фасадов. При установке соединительные швы остаются открытыми, а крепежные элементы окрашиваются в цвет кассет. Одно из преимуществ технологии состоит в том, что детали легко снимаются и заменяются новыми.
Особенности и применение
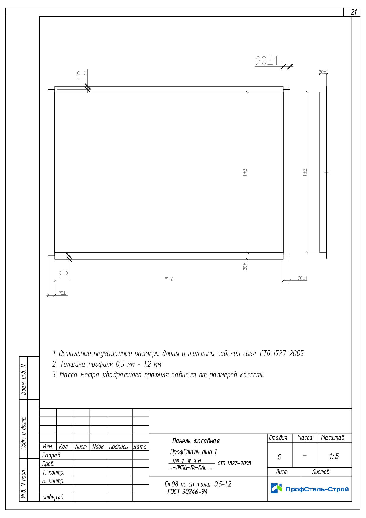
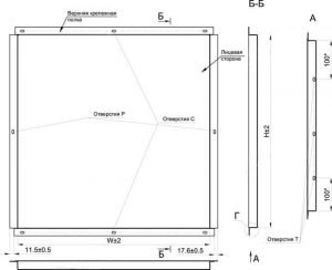
Для создания металлокассет открытого типа используется листовая сталь (нержавейка, оцинкованная) толщиной 0,5-1,2 мм. Руст между деталями достигает 20 мм.
Установка производится с помощью вертикальных направляющих и кронштейнов. Между кассетой и стеной укладывается слой паро- и звукоизоляции, утеплителя.
Преимущества
- Возможность купить детали по индивидуальным размерам.
- Легкость и быстрота монтажа.
- Абсолютная негорючесть покрытия.
- Надежная защита от факторов окружающей среды.
- Долгий срок службы и доступная цена.
Если вам нужны металлокассеты открытого типа, мы поможем рассчитать количество материалов и смету.

На сайте, также, представлены керамогранитные плиты.

Материал: Металлокассеты
Допустимая высота объекта: без ограничений
Класс пожарной опасности: К0
Сейсмоустойчивость: до 9 баллов
Безремонтный срок службы: 50 лет
Размеры облицовки: без ограничений
Документ для конструкторов: Узлы ФВ ПрофСталь-Строй 2007.dwg (Скачать)
